1931 Hudson 4door

I am looking for a frame. There have been several over the years but I’m always to late to get one.  All I want is the frame bought a parts car body so there not enough to restore but I haven’t seen one at a street Rod show.  At least it will get seen lol. I will make a frame if I can’t find one    Had the car for 25 or more years.   Thanks

Comments

  • 46HudsonPU
    46HudsonPU Administrator
    edited September 2022
    Are you a member of the HET Club? 
    - You might want to ask, on the HET Club website forum - Essentially, this is the 'Open' forum, and asking there may give you another avenue for your inquiry;
    - Also, you could advertise for your frame within the WTN, the HET Club's award winning bi-monthly magazine (published every other month). Advertisement in the WTN classifieds is 'free', however is only available to HET Club members;
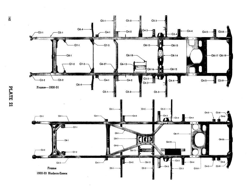
    As shown in the attachment, it appears that your frame was the same, for both 1930 & 1931(?).  While this is very simplified and leaves many questions (was a two-door frame shorter than a four-door, were the Essex & Hudson variations of the fame identical/similar, etc..), it would expand your search, effectively doubling your chances on finding a suitable frame.
    The attached .jpg file was taken from the '1930 - 1939 Hudson Master Chassis Parts' Manual, available for download from the online HET Club library - here:
    https://hetclub.org/index.php?option=com_booklibrary&task=view_bl&id=320&catid=128&Itemid=1096
    (you may need to be logged-in to the HET Club website to view).

    Hope this helps -